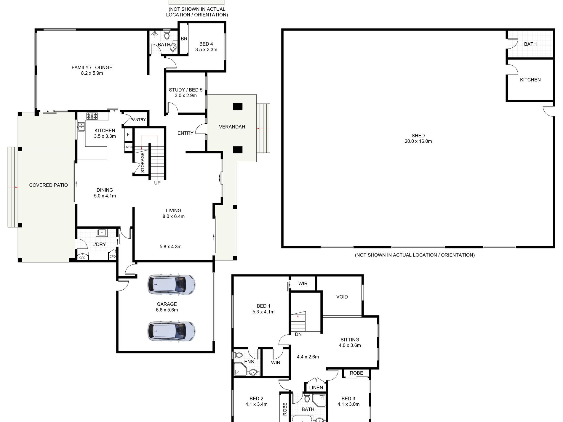
Immerse yourself in the beauty of nature and indulge in the breathtaking surroundings of this stunning acreage property. This well-presented double-storey home is designed to accommodate even the largest families with its spacious layout. Featuring five bedrooms, including a guest suite, and three bathrooms. The thoughtful design emphasizes ample living spaces, including an upstairs sitting room perfect for relaxation..
Nestled on a generous 6.23 acre parcel of land amidst scenic rural views, this fabulous home offers the charm of country living with modern conveniences. The large country style kitchen perfectly services the dinning and rear patio. The 320sqm shed with high ceilings features a convenient toilet and a well-appointed kitchen, making it a versatile space for work or leisure.
Features:
- Stunning 6.23 acres of land with exceptional land holding which offers many recreational and development opportunities (STCA)
- 5 bedroom home including guest accommodation, three bathrooms and the main bedroom with an ensuite
- Multiple living areas, flowing over two levels with ample space to entertain
- Undercover patio entertaining area and fenced yard
- Ducted air conditioning throughout
- Well appointed kitchen with stainless steel appliances
- Escarpment views on offer from upper levels
- Double garage with internal access and surplus of space for storage
- RE2 Zoning allowing: Caravan parks; Community facilities; Entertainment facilities; Recreation areas (STCA)
- Convenient 16m x 20m shed with 3 phase power, bathroom and kitchen facilities
- Grounds are fully fenced, ready for hobby farming.
- Close to public transport (Bus & Trains) and Dapto Mall.
Travel to Sydney in just 1.5 hours for your city fix or enjoy the convenience of nearby attractions such as the Dapto Leagues Club and Kembla Grange Racecourse. Additionally, shopping facilities and the train station are only minutes away, making this location perfect for both accessibility and entertainment.
Water rates: $170 p/q approx.
Council rates: $942 p/q approx.
House: Market rental $1400 p/w approx.
Shed: Market Rental $600 p/w approx.
The property is presented by Rise Property Group, for further information please contact Daniel Kostovski 0402 037 940 or Elena Gould 0436 366 606.
Whilst every effort has been made to ensure the accuracy and thoroughness of the information provided to you in our marketing material, we cannot guarantee the accuracy of the information provided by our vendors, and as such, Rise Property Group makes no statement, representation or warranty, and assumes no legal liability in relation to the accuracy of the information provided. Interested parties should conduct their own due diligence in relation to each property they are considering purchasing. All photographs, maps, and images are representative only, for marketing purposes.
Features
- Air Conditioning
- Split-System Air Conditioning
- Fully Fenced
- Outdoor Entertainment Area
- Shed
- Broadband Internet Available
- Built-in Wardrobes
- Dishwasher



























